Licensed & Insured | CA License #1060310
INTERIOR DESIGN SERVICES

Interior Design Services

Choose from foundational layout planning or personalized interior design or go all-in with architectural design services, 3D visualization, and permit-ready documentation.

Design That Drives the Build

Our interior design services combine creative vision with practical expertise to transform your space. A remodel should feel well planned not patched together. If your layout feels off or the space no longer fits your needs, the solution starts with thoughtful custom interior design. At ASL, we help you rethink how your space works through our design-build approach, so the construction phase runs smoother, faster, and with fewer surprises. From 3D visualization to material selection, our home design services ensure every detail is intentional.

Comprehensive Design Services for Every Project

At ASL Remodeling, every successful remodel starts with intentional design. Whether you're planning kitchen design services, bathroom design services, building an addition, or creating an addition, or creating a new layout from scratch, our flexible residential design services give you the freedom to start where you need. Our professional interior designers work with you through a collaborative design process that includes space planning, color palette development, and expert guidance. You can choose one or both of these tailored house design services:

Interior Design Services

Interior Design Services

Layout planning, finish selection, 3D rendering, personalized interior design to bring your vision to life.

Architectural & Engineering Services

Architectural & Engineering Services

Construction drafting, architectural plans, structural calculations, and permit handling for code-compliant projects.

Interior Design Services

We offer two levels of interior design service based on your goals and involvement, from essential planning to fully personalized design solutions:

Essential Design

  • Layout planning & space planning optimization
  • Basic drafting
  • Material selection & finish selection
  • Showroom coordination
  • Preliminary 3D visualization
RECOMMENDED

Personalized Interior Design

  • Dedicated professional interior designer
  • Layout planning & functional design solutions
  • Mood boards and aesthetic planning
  • Curated materials, fixture selection, and lighting design
  • Photorealistic 3D rendering walkthroughs
  • Styling input for cabinetry, color palette development, and more

Ideal for: Homeowners who want a curated, design-driven remodeling experience with expert design professionals.

Architectural Design Services

We provide city-ready documentation and full plan development for major remodels, additions, ADUs, or new builds. Our architectural design services integrate seamlessly with our interior design service for comprehensive design solutions.

What's Included:

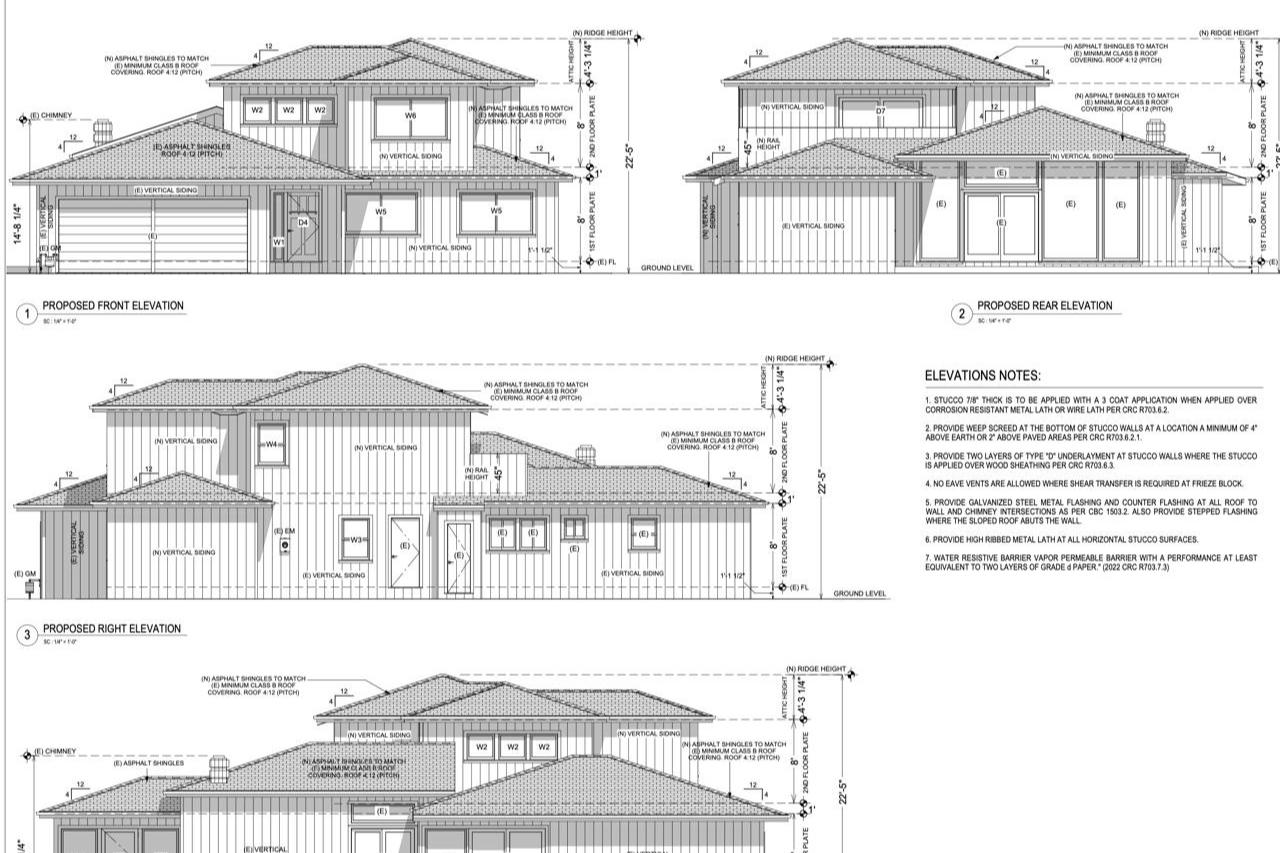
Architectural drafting and floor plan layout
Structural engineer plans and calculations
Title 24 energy compliance
Site plans, demolition plans, arborist reports (if required)
City submittals, corrections, and permit approvals

Ideal for: Projects needing stamped drawings or full plan sets for city permitting

Architectural & Permitting Workflow

This 6-phase process ensures accuracy, feasibility, and smooth city approvals through our integrated design services approach.

  • Confirm as-built plans, kickoff with architect
  • Draft and revise layouts through space planning
  • Approve floor plan with furniture layout considerations
  • Architectural plan set (elevations, site plan, electrical)
  • Final client approval, arborist report if needed
  • Lighting design specifications
  • Submit to planning department, address feedback
  • Gain approval through our design and architectural services coordination
  • Provide detailed estimate based on approved layout, material selection, and finish selection specifications
  • Structural drawings + Title 24
  • Submit to building department
  • Final permit approval
  • Align permit issuance with start date
  • Prepare for build phase with our design and build services team ready

Why Choose ASL's Design-Build Approach?

We are a licensed general contractor serving the Bay Area. Our reputation is built on transparent communication, expert craftsmanship, and client-focused service.

One Team From Design to Construction

One experienced design team from custom interior design to construction no handoffs

Seamless Integration

Our turnkey design services eliminate third party delays

Accurate Budgeting From Day One

Accurate budgeting from day one with transparent pricing

Fast-Tracked Project Timelines

Fast-tracked timelines through our efficient design-build approach

In-House Permit Management

In-house handling of permits, corrections, and walkthroughs by expert design professionals

Full Visibility & Creative Support

Full visibility and creative support with award-winning design throughout the project

What Our Clients Say About Our Interior Design Service

Don't just take our word for it, hear from Bay Area homeowners who've experienced our commitment to quality, transparency, and exceptional results. These testimonials reflect the lasting relationships we build and the transformative spaces we create through our design-build approach.

Client Stories

Hear directly from our clients about their remodeling experience and see the beautiful transformations we've created together. These stories showcase why choosing the right remodeling contractor makes all the difference in achieving your vision.

Bathroom Remodeling in Monte Sereno

Bathroom Remodeling in Monte Sereno

See how we transformed this bathroom

Home Remodeling in Santa Clara

Home Remodeling in Santa Clara

Complete home transformation

Interior Design Services FAQ

Common questions about our interior design services, home design services packages, and collaborative design process.

Our interior design services include design consultation, space planning, 3D visualization and rendering, material selection, finish selection, fixture selection, lighting design, color palette development, furniture layout, and construction support. We offer both essential layout planning and personalized interior design with dedicated professional interior designers for a fully customized experience.
Essential Design includes space planning, 3D rendering, and finish selection with showroom guidance. Personalized Interior Design adds a dedicated interior designer, mood boards, curated styling, color palette development, lighting design expertise, and comprehensive aesthetic planning throughout your project.
We provide full architectural design, drafting plans, structural engineering, Title 24 energy compliance, and complete construction documents for city submittal. Our design and architectural services ensure seamless integration between design vision and buildable plans.
We regularly provide kitchen design services, bathroom design services, room additions, ADUs, and second story additions. Our house design services include complete layout planning, permit sets, and 3D visualization for residential design services of all types.
Absolutely. Our design consultation process includes presenting multiple layout concepts using space planning expertise. We help you choose the best functional design solutions for your goals and space through our collaborative design process.
We offer flexible custom design solutions based on your scope, timeline, and design needs from basic layout planning to fully styled interiors with 3D rendering, material selection, and personalized design approach tailored to your vision.
We manage the entire process through our design and build services approach including city coordination, plan revisions, and all required engineering and arborist reports. Our experienced design team ensures smooth approvals.
We can help! Many clients come with existing drawings but need 3D rendering, material selection, color palette development, lighting design, or a personalized interior design service to complete their vision.
Yes! We serve Bay Area homeowners throughout Los Gatos, San Jose, Campbell, Saratoga, and surrounding communities. Our local experienced design team provides comprehensive home design services to your area.
A design-build approach means one team handles both design and construction. Our seamless design-build eliminates handoffs between architects and contractors, resulting in better communication, accurate budgeting, and faster timelines through our integrated design services.

Ready to Start Your Design Journey?

Schedule a free consultation to discuss your project and explore which design services are right for you.

Book Free Consultation

Serving Bay Area Communities

Our interior design services combine home design services with design-build expertise. From concept to completion, we transform your vision into beautiful, functional spaces. Additionally, we provide seamless kitchen remodeling, bathroom renovations, and home additions throughout the Bay Area.

Ready to Start Your Design Journey?

Whether you need space planning support, full personalized interior design, or permit-ready architectural design services ASL's in-house team of professional interior designers will guide your vision from day one. Experience the advantages of our design and build services approach with comprehensive design solutions tailored to your home.

CONTACT US TODAY

Get Your Free Estimate

We'd love to hear about your project

Please enter your full name
Please enter a valid phone number
Please enter a valid email address
Please select a service
Please select an option
0/500

Thank You!

We've received your request and will contact you within 24 hours to schedule your estimate.